Bucket Elevator Design Guide . this bucket elevator manual will confine its scope to general information on a “standard leg installation.” the variety of leg sizes,. discover the comprehensive guide to bucket elevator design, covering all essential aspects from types and. One of the most efficient ways to elevate bulk materials vertically is with a bucket elevator. bucket elevator engineering guide. A vast number of organisations rely on bucket elevators for conveying and elevating dry. Fine bulk material (raw meal, cement etc.) coarse bulk material (limestone, clinker, coal,. from understanding the different types of bucket elevators to considering the material, design, capacity, and customisation options, this guide will provide you. how to design a bucket elevator.
from www.dynemix.com
bucket elevator engineering guide. how to design a bucket elevator. Fine bulk material (raw meal, cement etc.) coarse bulk material (limestone, clinker, coal,. this bucket elevator manual will confine its scope to general information on a “standard leg installation.” the variety of leg sizes,. One of the most efficient ways to elevate bulk materials vertically is with a bucket elevator. from understanding the different types of bucket elevators to considering the material, design, capacity, and customisation options, this guide will provide you. discover the comprehensive guide to bucket elevator design, covering all essential aspects from types and. A vast number of organisations rely on bucket elevators for conveying and elevating dry.
Bucket Elevators, Centrifugal Belt, Positive, Gravity or Continuous
Bucket Elevator Design Guide this bucket elevator manual will confine its scope to general information on a “standard leg installation.” the variety of leg sizes,. A vast number of organisations rely on bucket elevators for conveying and elevating dry. this bucket elevator manual will confine its scope to general information on a “standard leg installation.” the variety of leg sizes,. One of the most efficient ways to elevate bulk materials vertically is with a bucket elevator. from understanding the different types of bucket elevators to considering the material, design, capacity, and customisation options, this guide will provide you. how to design a bucket elevator. Fine bulk material (raw meal, cement etc.) coarse bulk material (limestone, clinker, coal,. bucket elevator engineering guide. discover the comprehensive guide to bucket elevator design, covering all essential aspects from types and.
From ssccust1.spreadsheethosting.com
Belt Bucket Elevator(3) Bucket Elevator Design Guide from understanding the different types of bucket elevators to considering the material, design, capacity, and customisation options, this guide will provide you. bucket elevator engineering guide. Fine bulk material (raw meal, cement etc.) coarse bulk material (limestone, clinker, coal,. discover the comprehensive guide to bucket elevator design, covering all essential aspects from types and. this bucket. Bucket Elevator Design Guide.
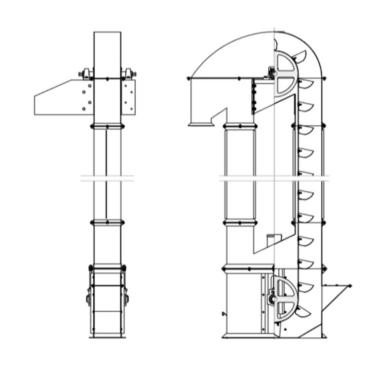
From blog.vgprocess.com
BUCKET ELEVATOR CAPACITY CALCULATIONS VG Engineers Pvt Ltd. Bucket Elevator Design Guide One of the most efficient ways to elevate bulk materials vertically is with a bucket elevator. Fine bulk material (raw meal, cement etc.) coarse bulk material (limestone, clinker, coal,. how to design a bucket elevator. A vast number of organisations rely on bucket elevators for conveying and elevating dry. bucket elevator engineering guide. from understanding the different. Bucket Elevator Design Guide.
From www.filquip.com.au
Bucket Elevators Filquip Bucket Elevator Design Guide One of the most efficient ways to elevate bulk materials vertically is with a bucket elevator. A vast number of organisations rely on bucket elevators for conveying and elevating dry. bucket elevator engineering guide. from understanding the different types of bucket elevators to considering the material, design, capacity, and customisation options, this guide will provide you. this. Bucket Elevator Design Guide.
From www.youtube.com
Chain Bucket Elevator detail Overview Type, Area of application Bucket Elevator Design Guide discover the comprehensive guide to bucket elevator design, covering all essential aspects from types and. from understanding the different types of bucket elevators to considering the material, design, capacity, and customisation options, this guide will provide you. how to design a bucket elevator. One of the most efficient ways to elevate bulk materials vertically is with a. Bucket Elevator Design Guide.
From statesengineeringinc.com
Double Bucket Elevator • States EngineeringStates Engineering Bucket Elevator Design Guide A vast number of organisations rely on bucket elevators for conveying and elevating dry. from understanding the different types of bucket elevators to considering the material, design, capacity, and customisation options, this guide will provide you. how to design a bucket elevator. bucket elevator engineering guide. this bucket elevator manual will confine its scope to general. Bucket Elevator Design Guide.
From www.internovi.nl
Continuous bucket elevators Internovi B.V. Verticaal Transport Bucket Elevator Design Guide discover the comprehensive guide to bucket elevator design, covering all essential aspects from types and. bucket elevator engineering guide. One of the most efficient ways to elevate bulk materials vertically is with a bucket elevator. Fine bulk material (raw meal, cement etc.) coarse bulk material (limestone, clinker, coal,. how to design a bucket elevator. this bucket. Bucket Elevator Design Guide.
From www.cereatech.com
Bucket Elevator Bucket Elevator Design Guide how to design a bucket elevator. Fine bulk material (raw meal, cement etc.) coarse bulk material (limestone, clinker, coal,. discover the comprehensive guide to bucket elevator design, covering all essential aspects from types and. from understanding the different types of bucket elevators to considering the material, design, capacity, and customisation options, this guide will provide you. . Bucket Elevator Design Guide.
From dokumen.tips
(PDF) Bucket Elevator Design Guide DOKUMEN.TIPS Bucket Elevator Design Guide Fine bulk material (raw meal, cement etc.) coarse bulk material (limestone, clinker, coal,. from understanding the different types of bucket elevators to considering the material, design, capacity, and customisation options, this guide will provide you. discover the comprehensive guide to bucket elevator design, covering all essential aspects from types and. how to design a bucket elevator. A. Bucket Elevator Design Guide.
From www.iqsdirectory.com
Bucket Elevators & Conveyors What Are They? Types, Uses Bucket Elevator Design Guide Fine bulk material (raw meal, cement etc.) coarse bulk material (limestone, clinker, coal,. bucket elevator engineering guide. A vast number of organisations rely on bucket elevators for conveying and elevating dry. discover the comprehensive guide to bucket elevator design, covering all essential aspects from types and. One of the most efficient ways to elevate bulk materials vertically is. Bucket Elevator Design Guide.
From www.rotarykilnfactory.com
Bucket Elevator From AGICO Bucket Elevators Manufacturer Bucket Elevator Design Guide from understanding the different types of bucket elevators to considering the material, design, capacity, and customisation options, this guide will provide you. Fine bulk material (raw meal, cement etc.) coarse bulk material (limestone, clinker, coal,. bucket elevator engineering guide. One of the most efficient ways to elevate bulk materials vertically is with a bucket elevator. discover the. Bucket Elevator Design Guide.
From www.schlagel.us
Bucket Elevator Schlagel Bucket Elevator Design Guide One of the most efficient ways to elevate bulk materials vertically is with a bucket elevator. A vast number of organisations rely on bucket elevators for conveying and elevating dry. from understanding the different types of bucket elevators to considering the material, design, capacity, and customisation options, this guide will provide you. Fine bulk material (raw meal, cement etc.). Bucket Elevator Design Guide.
From www.siouxsteel.com
SCAFCO Bucket Elevators Sioux Steel Company Bucket Elevator Design Guide A vast number of organisations rely on bucket elevators for conveying and elevating dry. from understanding the different types of bucket elevators to considering the material, design, capacity, and customisation options, this guide will provide you. bucket elevator engineering guide. this bucket elevator manual will confine its scope to general information on a “standard leg installation.” the. Bucket Elevator Design Guide.
From www.researchgate.net
(PDF) Bucket elevator properties, design and calculation Bucket Elevator Design Guide bucket elevator engineering guide. Fine bulk material (raw meal, cement etc.) coarse bulk material (limestone, clinker, coal,. One of the most efficient ways to elevate bulk materials vertically is with a bucket elevator. how to design a bucket elevator. this bucket elevator manual will confine its scope to general information on a “standard leg installation.” the variety. Bucket Elevator Design Guide.
From www.scribd.com
Bucket Elevator Catalog PDF PDF Belt (Mechanical) Oat Bucket Elevator Design Guide from understanding the different types of bucket elevators to considering the material, design, capacity, and customisation options, this guide will provide you. discover the comprehensive guide to bucket elevator design, covering all essential aspects from types and. how to design a bucket elevator. bucket elevator engineering guide. this bucket elevator manual will confine its scope. Bucket Elevator Design Guide.
From www.researchgate.net
Parts of a Bucket Elevator [3]. Download Scientific Diagram Bucket Elevator Design Guide One of the most efficient ways to elevate bulk materials vertically is with a bucket elevator. A vast number of organisations rely on bucket elevators for conveying and elevating dry. how to design a bucket elevator. from understanding the different types of bucket elevators to considering the material, design, capacity, and customisation options, this guide will provide you.. Bucket Elevator Design Guide.
From www.cementequipment.org
BUCKET ELEVATOR EXCEL CALCULATION INFINITY FOR CEMENT EQUIPMENT Bucket Elevator Design Guide One of the most efficient ways to elevate bulk materials vertically is with a bucket elevator. this bucket elevator manual will confine its scope to general information on a “standard leg installation.” the variety of leg sizes,. bucket elevator engineering guide. A vast number of organisations rely on bucket elevators for conveying and elevating dry. discover the. Bucket Elevator Design Guide.
From www.creamermetal.com
Bucket Elevators Bucket Elevator Design Guide from understanding the different types of bucket elevators to considering the material, design, capacity, and customisation options, this guide will provide you. One of the most efficient ways to elevate bulk materials vertically is with a bucket elevator. bucket elevator engineering guide. how to design a bucket elevator. A vast number of organisations rely on bucket elevators. Bucket Elevator Design Guide.
From www.upwork.com
NE50 plate chain bucket elevator design CAD Upwork Bucket Elevator Design Guide bucket elevator engineering guide. from understanding the different types of bucket elevators to considering the material, design, capacity, and customisation options, this guide will provide you. A vast number of organisations rely on bucket elevators for conveying and elevating dry. this bucket elevator manual will confine its scope to general information on a “standard leg installation.” the. Bucket Elevator Design Guide.